Cleanse & La Cucina

Retro meets modern

Within this 1960s brick walk-up, the kitchen and bathroom have been reimagined to capture the spirit of the era while embracing contemporary design. The original parquetry floors were carefully restored in the kitchen to create a seamless connection with the rest of the apartment. Minor demolition was carried out to open a new link between the kitchen and living room, allowing the spaces to connect more fluidly while still preserving their individual function. New double-glazed windows improve thermal performance and comfort, while a discreet exhaust fan in the bathroom brings the space up to modern compliance without compromising its character. Subtle nods to mid-century style are woven through material choices and detailing, complemented by modern finishes that elevate both form and function. The result is a home that feels timeless, where vintage character and modern ease exist in perfect balance.

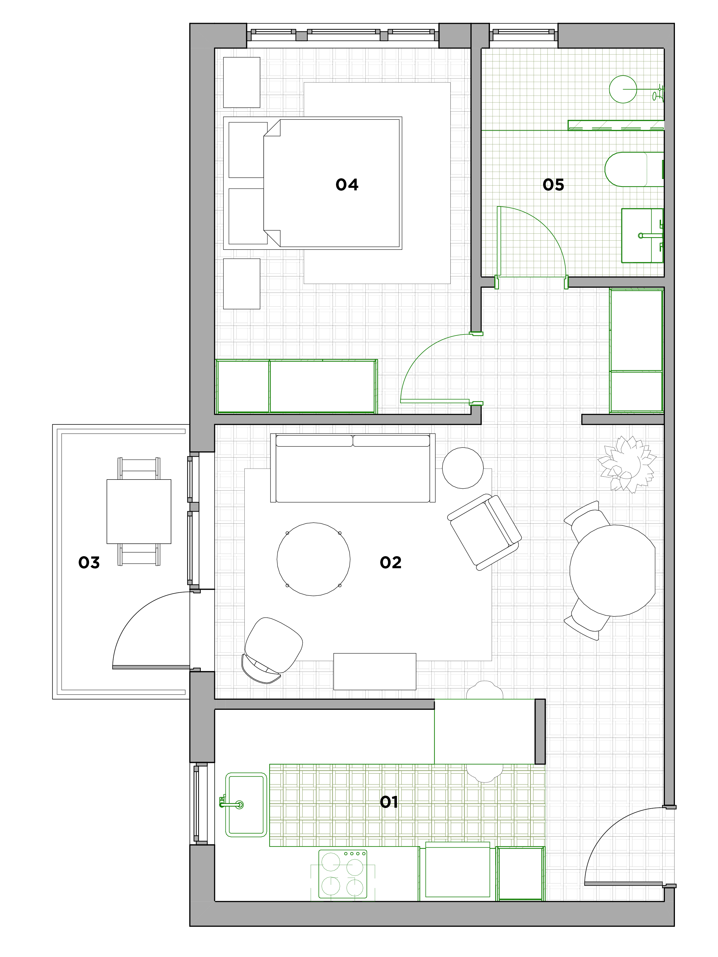
Plan

01 Kitchen

02 Living

03 Balcony

04 Bedroom

05 Bathroom

Next
Next

Mount Joy Maisonette